Back to listings

SOLD

Property Overview:   

   2 

About This Property

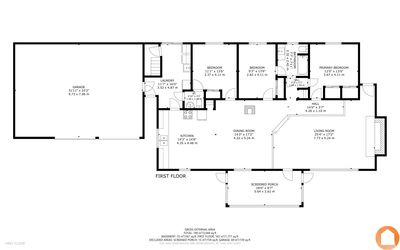
Hobby Farm Gem. At almost 50 acres, this rural property is located in the highly preferred, and conveniently located former Ops Township, adjacent to the hamlet of Reaboro. Bordering highway 7, this property is a unique combination of a convenient, easily accessible location, privacy from neighbours and traffic, with buildings that are completely functional as is, or a blank slate for you to modify into the retreat you dream of. Viceroy style bungalow offers ground source heat, 3 bedrooms, 2 baths, a cozy sunken living room with propane fireplace, and a large open concept kitchen/dining space; with the added convenience of an attached double car garage with entry to mud room with laundry. 

Hobby barn is solid, ready for you to tailor it to suit the livestock of choice - much of the existing fencing will need repair or replacing - offering an opportunity to truly customize the property to work for your vision! 

With a mix of open land and bush, lots of space to explore, walk the dog, or just set the pace of your own life, buffered from the hustle of the rest of the world! 

 

Essential Information

Listing #:X10432577

# of Bedrooms: 3

# of Bathrooms: 2

Type: Farm

Sub-Type: hobby

Community Information

city: Omemee

province: Ontario

postal code: K0L 2W0

Interior

Fireplace: Yes

Fireplace Type: Propane

# of Stories: 1

Heating

Ground Source Forced Air

Exterior

exterior: Board & Batten

exterior features: Deck(s), Porch

acreage: 48

Listing Details

Office: Royal LePage Kawartha Lakes Realty Inc.

Interested in this listing?   Book a viewing