Back to listings

3 Pinewood Cres, Pontypool

Property Overview:   

3 Pinewood Cres, Pontypool - $765,000


   2 

About This Property

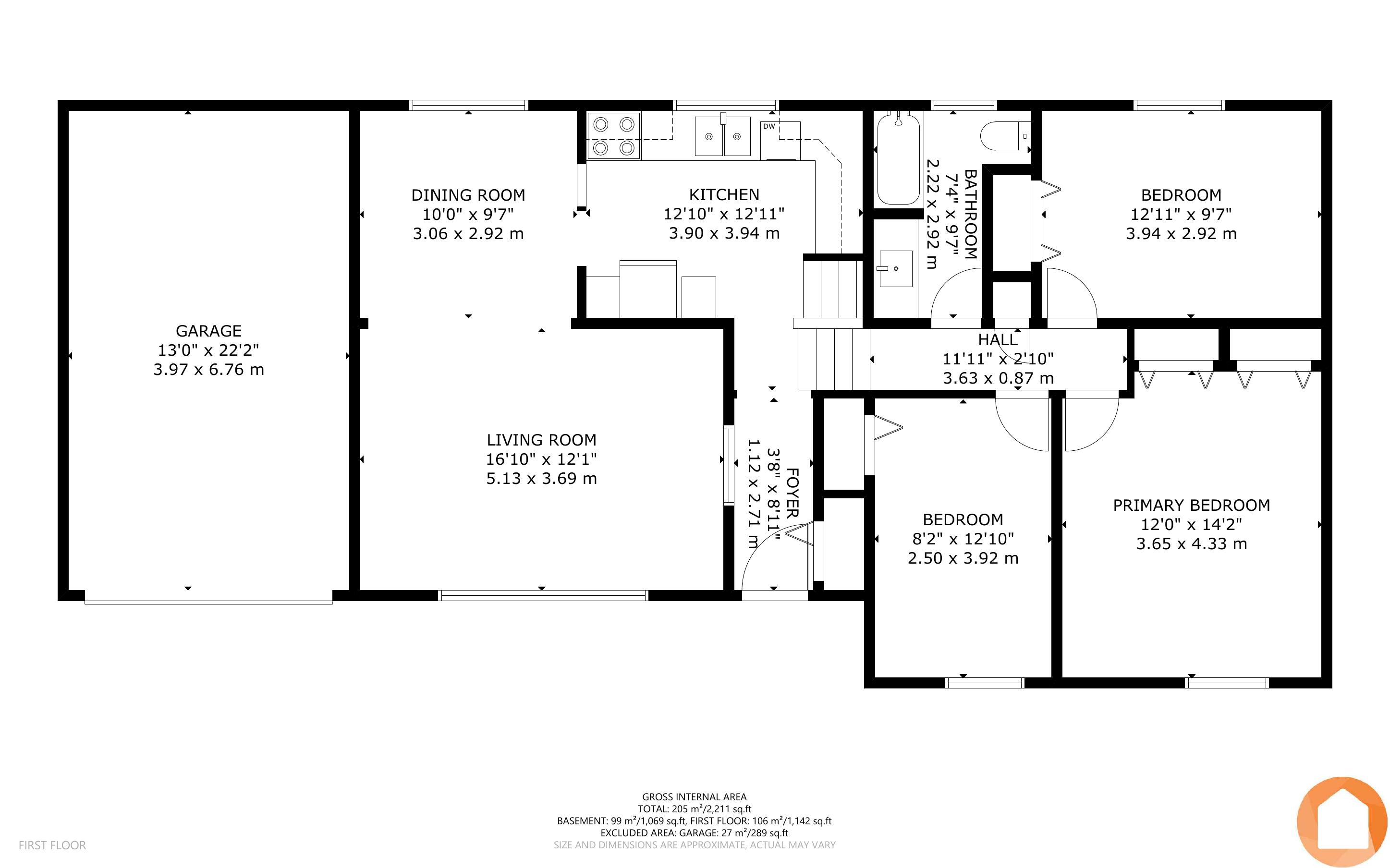
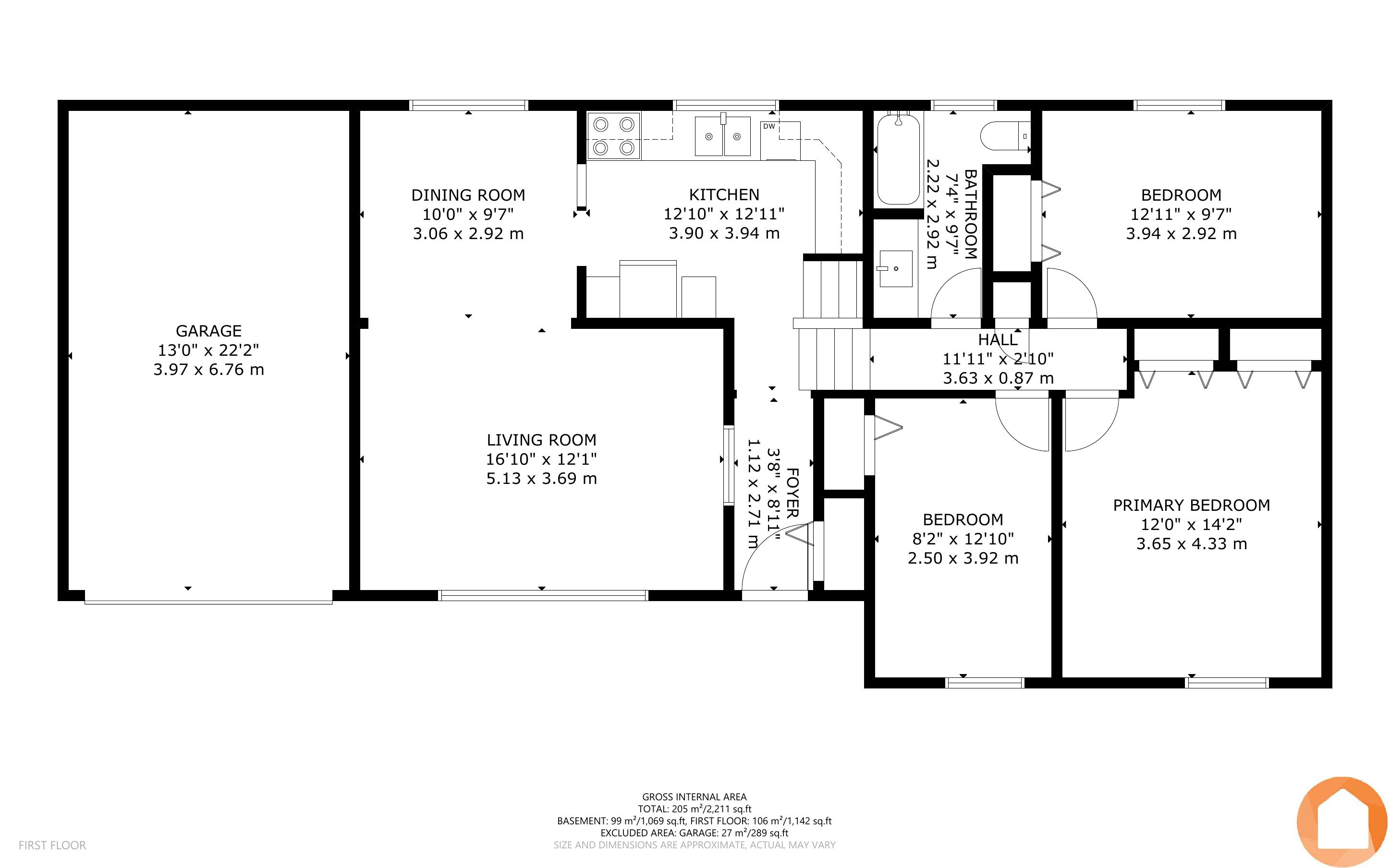
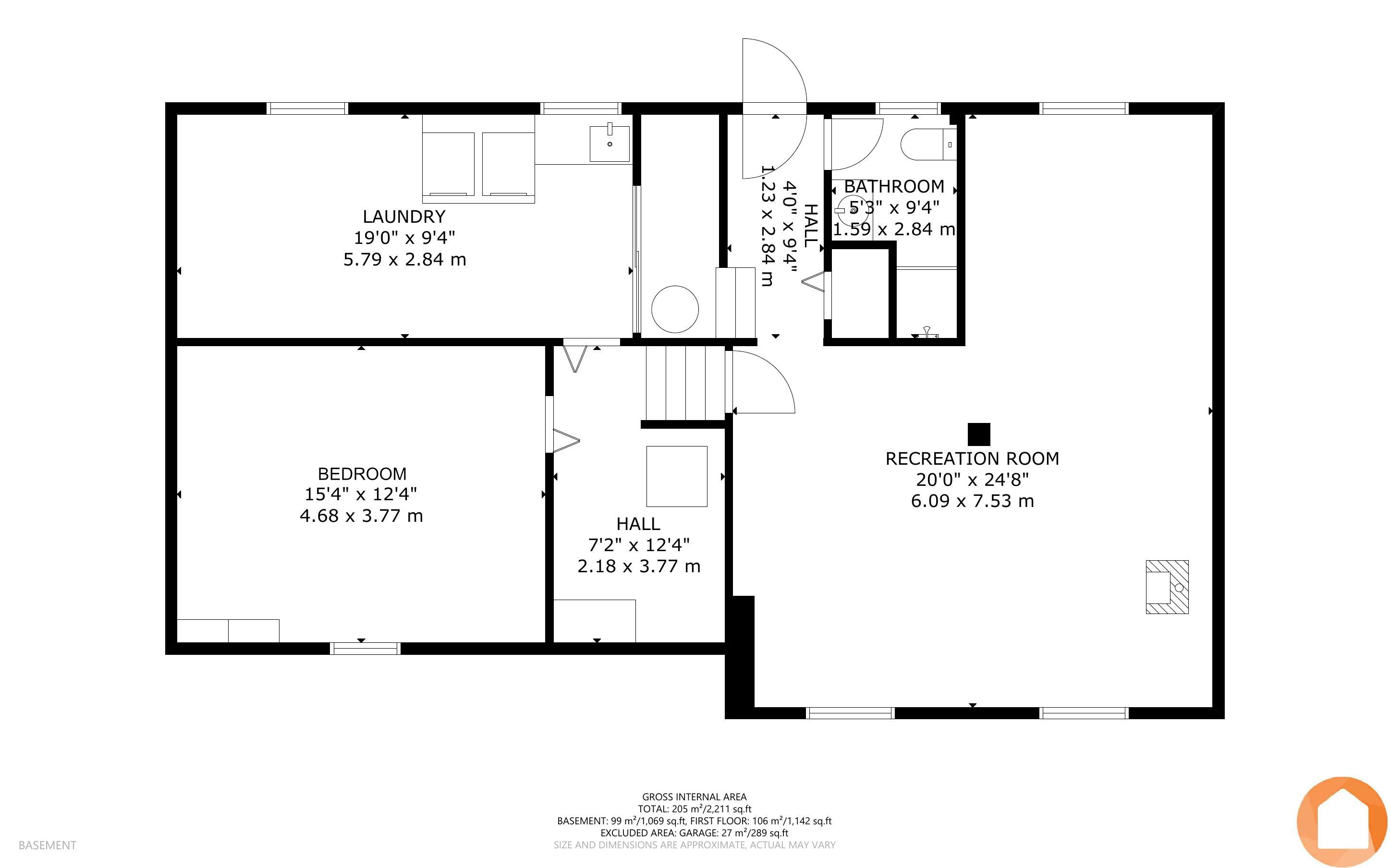
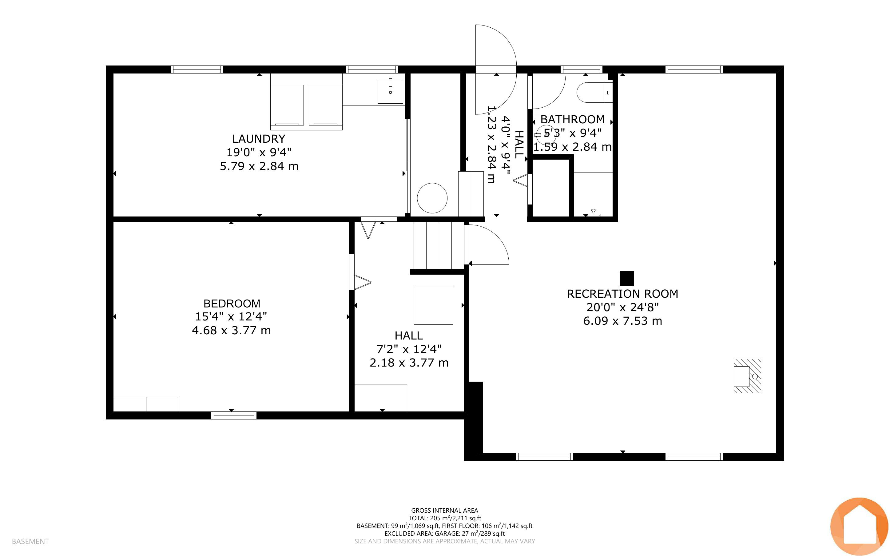
Property Trifecta! Great location, Versatile Layout, Family Friendly Small Town Neighbourhood. 3 Pinewood showcases true pride of ownership, with meticulous maintenance, thoughtful upgrades and quality material and finish choices throughout. Located on a corner lot, you'll benefit from the additional yard space, while appreciating the privacy that comes with the mature cedar hedge. Don't underestimate the bonus square footage found in this 4 level sidesplit floor plan; offering 3+1 bedrooms, a 4pc and a 3pc bath, formal principal rooms as well as cozy rec room spaces, and an oversized laundry room for additional storage or perhaps a corner for whatever hobby you have on the go! Updates you shouldn't miss: European Windows and Door Hardware throughout, updated plumbing, electrical panel (2010), kitchen and bath fixtures, increased insulation, gas furnace ( 2010), shingles (11 years ago.) and siding. For added convenience to make life easy- high speed fibre optic internet is available, and 407 access is just 8 minutes from the driveway, so whether you are working from home or commuting- Pinewood Cres has you covered!

 

Essential Information

Listing #:X12424078

Price: $765,000

# of Bedrooms: 4

# of Bathrooms: 2

Type: Detached

Community Information

address: 3 Pinewood Cres

city: Pontypool

province: Ontario

postal code: L0A 1K0

Interior

Fireplace: Yes

Fireplace Type: Gas

Appliances

Central Air Conditioning, Dishwasher

Heating

Forced air - gas

Exterior

exterior: Brick, Vinyl siding

exterior features: Attached garage, Fully fenced, Landscaped

foundation: Concrete Block

Listing Details

Office: Royal LePage Kawartha Lakes Realty Inc.

Interested in this listing?   Book a viewing